APPARTEMENT CREQUI
LIEU - Lyon
SURFACE - 33 m2
CATEGORIE - Logements
TYPE - Rénovation
ANNEE - 2016
PHOTOGRAPHE - Aurélien Aumond Studio
“Nous apprécions les espaces épurés et minimalistes. Une architecture réussie doit, selon nous, laisser la place aux habitants de s’exprimer et de penser. Nous vivons dans une société particulièrement stimulante en terme de signaux et de stimuli, il est donc important de ne pas surcharger les espaces et de se contenter de l’essentiel.”
Fondé en 2011, l’agence DITO a su mettre ses compétences en design d’espace au service du projet de rénovation et d’agencement de ce studio. L’objectif : faire évoluer les volumes et les formes tout en modernisant l’endroit. Diane de Soras et Thomas Soulier ont créé un espace nuit, optimisé l’espace jour et densifié les rangements.
Des espaces déplacés
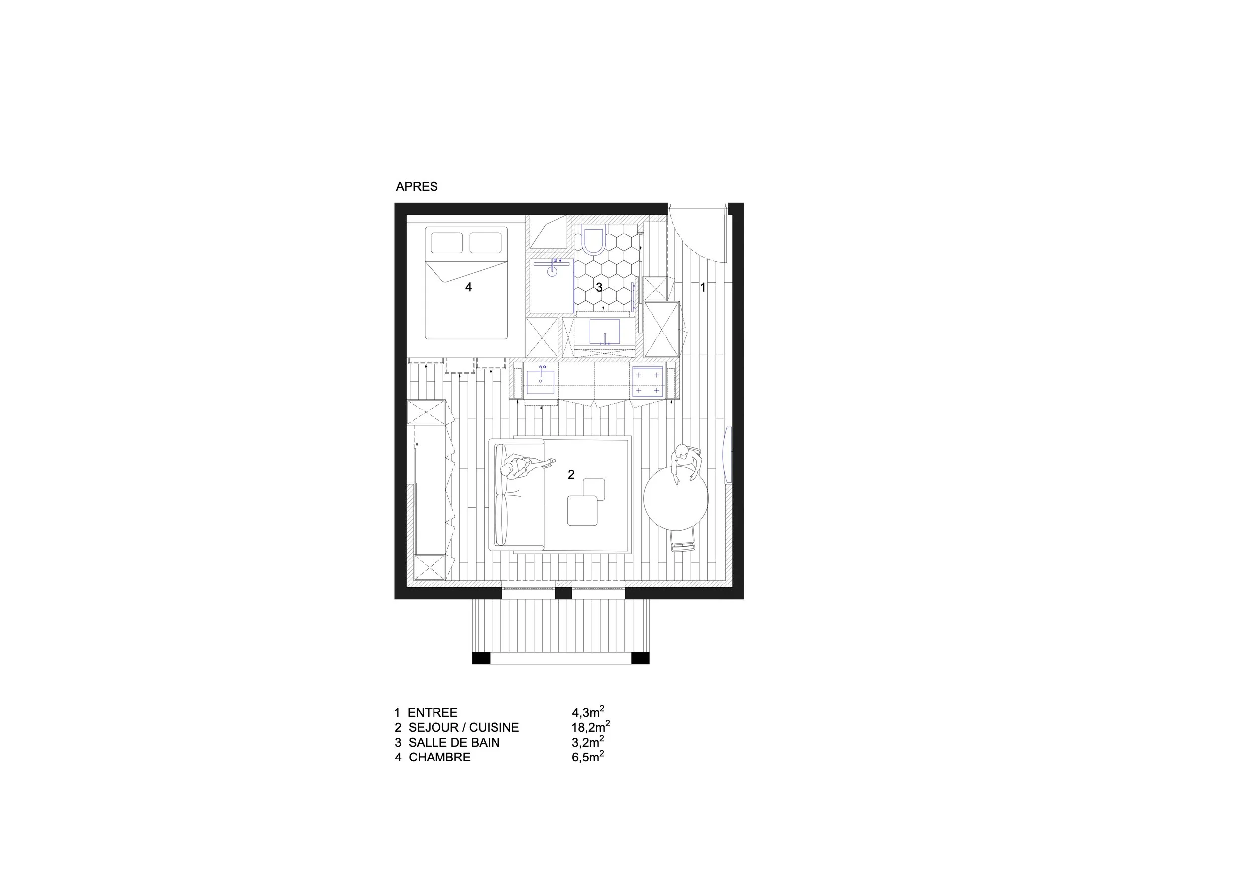
Au programme de la rénovation de ce studio, il fallait construire des espaces de rangements et redistribuer les pièces pour créer un espace chambre. C’est avec le bloc central que les architectes ont répondu aux besoins techniques et fonctionnels. Après une démolition intégrale des cloisons, sols et équipements sanitaires, l’espace était résolument plus dynamique. L’entrée profite d’une grande penderie qui permet de ranger manteaux et chaussures mais également le chauffe-eau en partie haute. Un placard tout en hauteur est dédié au matériel et produits ménagers. Quant à la cuisine, elle est logée sur la cloison de la salle d’eau et ouverte sur le séjour. Offrant tous les équipements d’une cuisine confortable, on sort de la classique « kitchenette » ni fonctionnelle ni agréable.
Un mur-meuble dans le salon
La recherche de qualité est une démarche essentielle que défend l’agence DITO. Cela passe par des collaborations régulières avec des artisans qu’ils connaissent. Diane de Soras confie : « Notre créativité est alimentée par nos explorations diverses, qu’il s’agisse d’un voyage, de la découverte d’un artiste, du travail d’un artisan, d’une sensibilité en présence d’une oeuvre qui nous touche. » Pour elle, il s’agit d’être sobre et attentif aux détails surtout pour la rénovation de petits espaces. Tous les recoins sont vus et utilisés quotidiennement. Chaque centimètre a son importance. A l’image du mobilier choisi avec soin qui permet une circulation aisée et amplifie une sensation de volume. Dans le séjour, le « mur-meuble » en Valchromat et chêne massif fait diversion quand à la présence centrale de la boîte. Il abrite des points de rangements (penderies, étagères, tiroirs), une bibliothèque, le système hi-fi et un écran tv. Son esthétique et sa polyvalence en font l’élément fort du projet qui donne son identité au lieu. La chambre a pris la place de l’ancienne cuisine. Le lit est placé sur une estrade, muni de grands tiroirs en-dessous. Le confort reste intact avec les 205 cm de l’estrade restants jusqu’au plafond. L’estrade est également en valchromat, dont le gris anthracite procure une sensation d’enveloppement propice au repos.
Des matériaux chauds et confortables
Le choix des matériaux tend aussi à favoriser le repos et la tranquillité. « Nous apprécions les espaces épurés et minimalistes. Une architecture réussie doit, selon nous, laisser la place aux habitants de s’exprimer et de penser. Nous vivons dans une société particulièrement stimulante en terme de signaux et de stimuli. On pense qu’il ne faut pas surcharger les espaces et se contenter de l’essentiel. » Pour Thomas Soulier, un espace sobre favorise la créativité et le bien-être.
C’est à partir de planches de tendances avec visuels et inspirations variées que les architectes d’intérieur ont orienté les clients sur des décors, des teintes, des matériaux pour créer un ensemble cohérent. Les propriétaires ont accordé toute leur confiance aux choix esthétiques des architectes en terme de revêtements et de finitions. Leur seule exigence était d’installer un beau parquet en chêne massif à la place de l’ancien. Au sol, on retrouve donc un beau chêne massif chaleureux et confortable. Les meubles sont déclinés dans des harmonies de gris : façades de la cuisine, plan de travail et crédence sont en carrelage grès cérame imitation marbre. Les équipements, grâce à cette teinte, sont rendus les plus discrets possible. Faisant écho aux éléments de la cuisine, la salle de bain joue avec une palette de gris chauds pour son carrelage hexagonale au sol et sa variante carrée dans la douche.
Texte : Julie Mendez pour 7SENS



















